Ovitzia - 2 Private Patios | Near Hampstead Heath
Entire rental unit in Greater London, United Kingdom
Two double bedrooms and a large sofa bed in the living room that opens onto a covered private patio.
The fully equipped kitchen has a six-seater table, ideal for meals or productive meetings.
Full bathroom with shower, plus a half bathroom.
Spread across two levels for extra space and privacy.
Nespresso machine for your coffee.
Just 7 minutes from the Tube station.
Close to Hampstead Heath and Camden Town.
The space
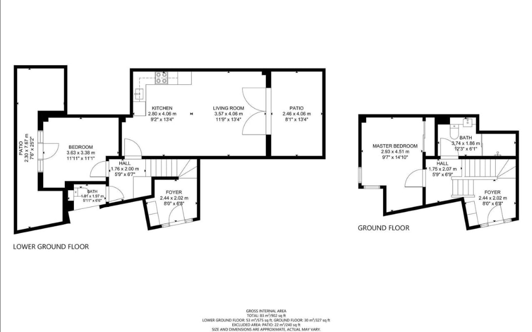
Welcome to our charming two-and-a-half-story apartment!Overview:
Spread across 2.5 levels, this spacious and newly furnished flat accommodates up to 6 people.
Nestled conveniently between Tufnell Park and Gospel Oak stations, with easy access to Hampstead Heath and Parliament Hill, our apartment is the ideal retreat for your London stay.
Layout:
Ground Floor:
- Access and entrance hall for a warm welcome.
Raised Ground Floor (6 steps up):
- 1 Double bedroom with double bed (190 x 135) and ample wardrobe
- 1 Bathroom with a large shower
Lower Ground Floor (11 steps down):
- 1 Double bedroom with double bed (190 x 135) with a private patio
- 1 Toilet (no shower) for added convenience.
- Open-plan living room with a fully equipped kitchen, providing a perfect space for relaxation and home-cooked meals.
- Furnished covered private patio accessible from the living room, ideal for dining or a morning coffee.
Amenities:
- Washing machine and dryer, plus a dishwasher
- Fully equipped kitchen
- Nespresso coffee machine. Coffee is provided.
- Stay connected with WiFi throughout your stay.
- Desk and HDMI monitor.
- Enjoy the furnished patio.
- & so much more!
Location:
- Within walking distance from Tufnell Park, Kentish Town and Gospel Oak stations.
- Explore the scenic beauty of Hampstead Heath and Parliament Hill nearby.
Whether you're a group of friends or a family looking for a comfortable and well-connected retreat, our apartment offers the perfect blend of convenience and relaxation.
Guest access
You will have exclusive access to the whole apartment.Other things to note
- PLEASE NOTE! Parties are strictly forbidden, and only the guests registered at the time of reservation can access the apartment.- PLEASE NOTE: We can provide a travel cot and high chair for £40 per stay upon request.
- PLEASE NOTE! A sound detector linked to a professional security company has been installed in the flat, and CCTV cameras are active in the common areas of the building for an added layer of security.
- PLEASE NOTE! The sofa bed is available upon request for an additional charge when booking for 4 guests or fewer. For bookings of 4 guests or less, 2 double beds are provided. Please inquire for more details.
Select dates to see prices
Managed by
Nadia E.
Bedrooms
Bedroom 1
1 double bed
Bedroom 2
1 double bed
Living room
1 sofa bed
Amenities
- Hair dryer
- Cleaning products
- Shampoo
- Body soap
- Hot water
- Shower gel
- Dryer
- Free washer – In unit
- 42-inch HDTV with Netflix
- Wifi
- Dedicated workspace
- Kitchen
4.94 · 18 Reviews
2 weeks ago
My family and I had a wonderful time at Ovitzia’s place. The home felt spacious for 5 of us plus a baby. The space is beautiful, clean and comfortable. We loved the location with plenty of restaurants within walking distance but also very easy access with trains and buses to explore the city. I would love to stay here again. Thank you for a great stay!
5 months ago
I stayed here for a week with my family when we came to move my son in for college. We were very comfortable during our stay. My teenage sons don’t want to share a bed, so we requested the sofa bed. It was prepared and ready for us when we arrived. Kentish Town is lovely and quaint while also offering great restaurants and an easy commute to the more bustling parts of London. We felt safe in the neighborhood and enjoyed our stay very much. We had nice weather and opened the windows and turned the fans on at night. It stayed cool enough for us to be comfortable. The Ovitzia team was quick to respond throughout our stay and allowed us to drop our luggage off before our check-in time. Everything was great!
Location
Neighbourhood highlights
House Rules
- Check-in: 16:00 – 22:00
- Checkout before 10:00
- Self check-in with lockbox
- 6 guests maximum
- No pets
- No parties or events
- No smoking
- No in-home services allowed
-
Additional rules
Quiet Hours between 21:00 to 8:00 No shoes on carpets No smoking inside the apartment
Safety & Property
- Carbon monoxide alarm installed
- Smoke alarm installed
- Must climb stairs
Property Manager Terms
- For a full refund, the guest must cancel at least 24 hours before the listing’s local check-in time (shown in the confirmation email).
- If the guest arrives and decides to leave early, the accommodation fees for the nights not spent 24 hours after the official cancellation are fully refunded.
- Cleaning fees are always refunded if the reservation is cancelled before check-in.
- Accommodation fees (the total nightly rate you’re charged) are refundable in certain circumstances as outlined below.
- A reservation is officially cancelled when the guest clicks the cancellation button on the cancellation confirmation page, which they can find in Dashboard > Your Trips > Change or Cancel.

