Host & Stay | Forest Green Lodge
Entire cabin in Alnwick, United Kingdom
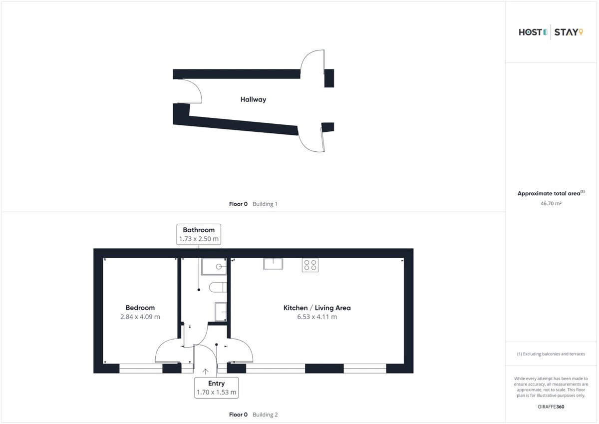
4 guests · 1 bedroom · 2 beds · 1 bathroom
Located in the stunning town of Alnwick, Forest Green Lodge is a detached, private lodge with plenty of charm. Quirky and cosy, the lodge sleeps two guests making it the perfect place for romantic retreats. You’ll have full access to the lodge during your stay which includes an open plan living, kitchen and dining area, double bedroom, bathroom and enclosed yard. A great choice when holidaying in Northumberland, Forest Green Lodge will provide a comfortable base to explore coast and country.
The kitchen boasts an oven, hob, kettle, microwave and toaster so you’ll be able to prepare meals easily during your stay. There is also the added bonus of a dishwasher, so you needn’t worry about the washing up during your stay.
With striking green walls, the bedroom is ultra cosy and snug. A comfortable double bed and ample hanging space complete the room.
The bathroom includes a walk-in shower, WC and wash basin.
Outside you’ll find a private, enclosed yard. Covered in bark chippings, you can enjoy this space when relaxing in the sunshine.
Free on-street parking is available nearby on a first come, first served basis. No permit is required.
If a travel cot is required for your stay at Forest Green Lodge this must be requested prior to check in.
The space
Forest Green Lodge has a living, kitchen and dining area where you can relax during your stay. The living space features a pine green, modern sofa bed and a flat screen TV making it perfect for unwinding. The dining area includes a breakfast bar wooden table and lime green stools.The kitchen boasts an oven, hob, kettle, microwave and toaster so you’ll be able to prepare meals easily during your stay. There is also the added bonus of a dishwasher, so you needn’t worry about the washing up during your stay.
With striking green walls, the bedroom is ultra cosy and snug. A comfortable double bed and ample hanging space complete the room.
The bathroom includes a walk-in shower, WC and wash basin.
Outside you’ll find a private, enclosed yard. Covered in bark chippings, you can enjoy this space when relaxing in the sunshine.
Guest access
Guests have access to the full lodge. The keys to Forest Green Lodge are accessed via a key safe box, and full details will be provided prior to your stay.Free on-street parking is available nearby on a first come, first served basis. No permit is required.
If a travel cot is required for your stay at Forest Green Lodge this must be requested prior to check in.
Bedrooms
Bedroom
1 double bed
Living room
1 sofa bed
Amenities
- Hair dryer
- Shampoo
- Hot water
- Essentials
- Hangers
- Bed linen
- Iron
- Wifi
- Dedicated workspace
- Kitchen
- Free on-street parking
- Pets allowed
4.54 · 28 Reviews
4 months ago
Beautifully furnished cottage, nicely located in the back area of a large house that consists of several holiday homes. Equipped with all comforts, although the sofa has had its best time. Great bed, lovely shower. No strange smell noticed or at least not bothered by it.
4 months ago
Nice spot. All as listed and described. Secure dog garden was excellent for our two small dogs. Really close to lots spots too - so very convenient. Only downside was the cleaning could have been a tad better. Overall, very happy with our stay here and would recommend to others - especially with dogs.
Location
Neighbourhood highlights
House Rules
- Check-in after 16:00
- Checkout before 10:00
- Self check-in with lockbox
- 4 guests maximum
- Pets allowed
- No parties or events
- No smoking
-
Additional rules
Host & Stay are committed to our owners that their homes are protected during bookings. For this reason, we require all of our guests to transfer a £250.00 Damage Deposit (subject to a £10.00 administration charge) or, to purchase an Accidental Damage Waiver for £25.00 which will cover you for up to £500.00 of accidental damage during your stay.
Safety & Property
- Carbon monoxide alarm installed
- Smoke alarm installed

