Host & Stay | St Radigunds House
Entire home in Kent, United Kingdom
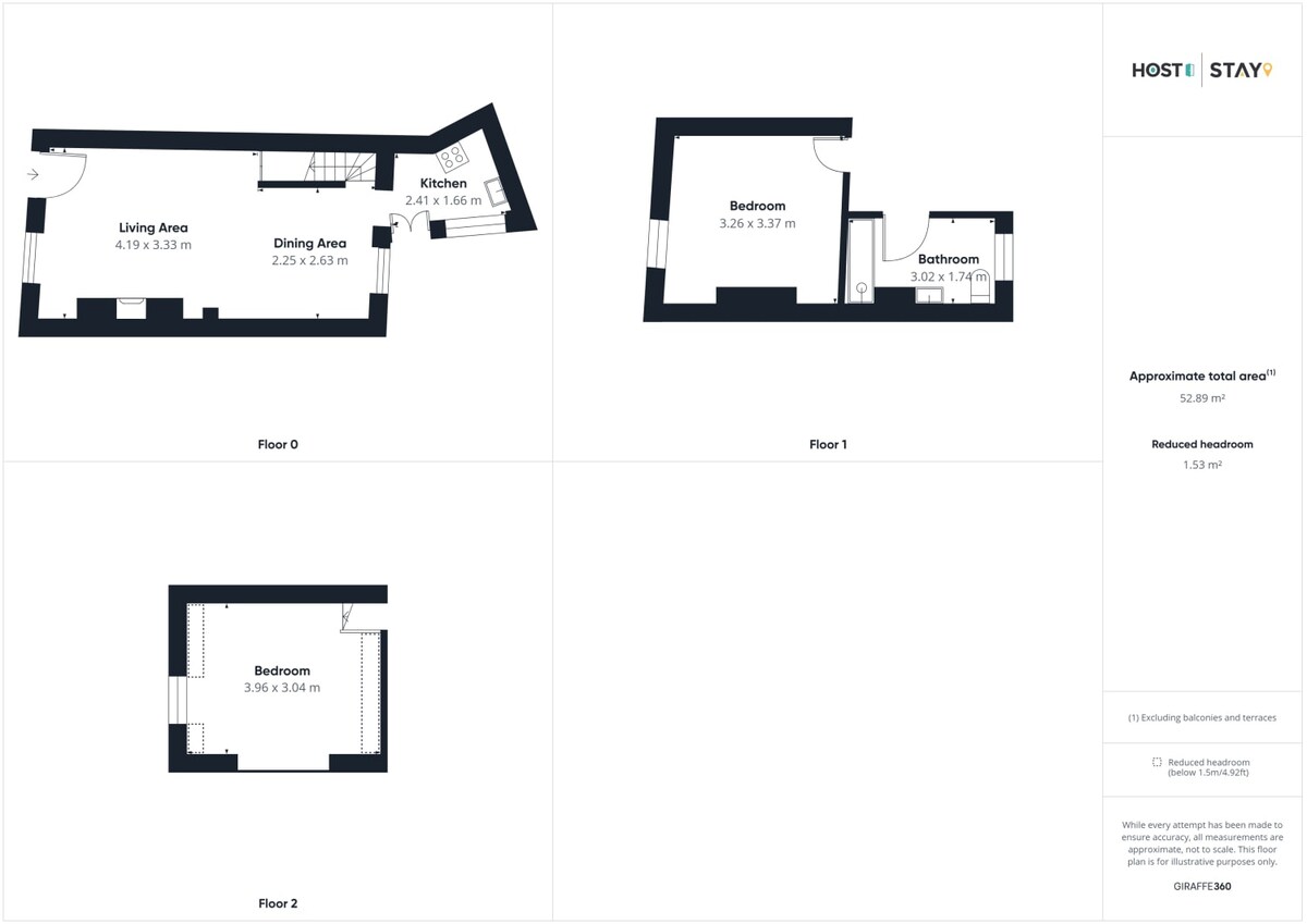
4 guests · 2 bedrooms · 2 beds · 1 bathroom
Nestled in the heart of Canterbury in Kent, you’ll find St Radigunds House. This beautiful, period cottage has been lovingly restored into a cosy and stylish holiday home. Sleeping up to four guests, it’s perfect for couples, families and small groups of friends. Close by to pubs, cafes and local amenities, St Radigunds House provides a comfortable base for exploring the historic city.
Upon entering the cottage, you’ll be welcomed into the open plan living and dining room. A statement fireplace dominates the space and is surrounded by armchairs to create a snug feel. At the rear of the room is the dining area which features a wooden table and four chairs.
Fully equipped for self-catering stays, the kitchen has an oven, hob, microwave, kettle, toaster and fridge so you can prepare home cooked meals during your stay.
Take the stairs up to the first floor and you’ll find a bedroom and the family bathroom. The bedroom boasts a comfortable double bed, a wardrobe, chest of drawers and a full-length mirror.
Modern and clean, the bathroom has a large walk-in shower, WC and vanity unit with a basin.
On the second floor, you’ll find the second bedroom. With a sloped ceiling and beams, this space is cosy. Every care has been taken to ensure you have a blissful night’s sleep as both bedrooms have premium bed linens and plush bedding.
Outside you’ll find a private courtyard.
The keys are accessed via a key safe box, and full details will be provided prior to your stay.
The space
St Radigunds House has a cosy cottage feel throughout with beautiful, exposed beams and traditional sash windows complemented perfectly with wooden furniture and dark soft furnishings.Upon entering the cottage, you’ll be welcomed into the open plan living and dining room. A statement fireplace dominates the space and is surrounded by armchairs to create a snug feel. At the rear of the room is the dining area which features a wooden table and four chairs.
Fully equipped for self-catering stays, the kitchen has an oven, hob, microwave, kettle, toaster and fridge so you can prepare home cooked meals during your stay.
Take the stairs up to the first floor and you’ll find a bedroom and the family bathroom. The bedroom boasts a comfortable double bed, a wardrobe, chest of drawers and a full-length mirror.
Modern and clean, the bathroom has a large walk-in shower, WC and vanity unit with a basin.
On the second floor, you’ll find the second bedroom. With a sloped ceiling and beams, this space is cosy. Every care has been taken to ensure you have a blissful night’s sleep as both bedrooms have premium bed linens and plush bedding.
Outside you’ll find a private courtyard.
Guest access
Guests have access to the full property.The keys are accessed via a key safe box, and full details will be provided prior to your stay.
Bedrooms
Bedroom 1
1 double bed
Bedroom 2
1 double bed
Amenities
- Hair dryer
- Shampoo
- Hot water
- Dryer
- Essentials
- Hangers
- Bed linen
- Washing machine
- TV
- Wifi
- Dedicated workspace
- Kitchen
This property has no reviews yet.
Location
Neighbourhood highlights
House Rules
- Check-in: 15:00 – 22:00
- Checkout before 10:00
- 4 guests maximum
- No pets
- No parties or events
- No smoking
Safety & Property
- Carbon monoxide alarm installed
- Smoke alarm installed
Property Manager Terms
- Note: The Super Strict cancellation policy applies to special circumstances and is by invitation only.
- For a 50% refund of the nightly rate, the guest must cancel 30 full days before the listing’s local check-in time (shown in the confirmation email).
- If the guest cancels fewer than 30 days in advance, the nights not spent are not refunded.
- If the guest arrives and decides to leave early, the nights not spent are not refunded.
- Cleaning fees are always refunded if the reservation is cancelled before check-in.
- Accommodation fees (the total nightly rate you’re charged) are refundable in certain circumstances as outlined below.
- A reservation is officially cancelled when the guest clicks the cancellation button on the cancellation confirmation page, which they can find in Dashboard > Your Trips > Change or Cancel.

